Модульный дом EFFECT LIGHT 59
Гарантия
1 год на весь товар
Доставка из Москвы
от 2 до 4 дней
Доставка по ДНР
Бесплатно
Установка специалистами
Оплачивается отдельно
Предоплата
Без предоплаты
от
1 991 279 ₽
Цена указана с НДС 20%

Консультация и заказ
Описание
Представляем Вашему вниманию высокотехнологичные частные дома, разработанные с учетом современных тенденций: высокие окна, плоская крыша, оптимальная высота потолков. В конструкции дома используются только негорючие и экологичные материалы собственного производства. Продуманные системы отопления, вентиляции и освещения обеспечивают необходимый комфорт с минимальными энергозатратами.
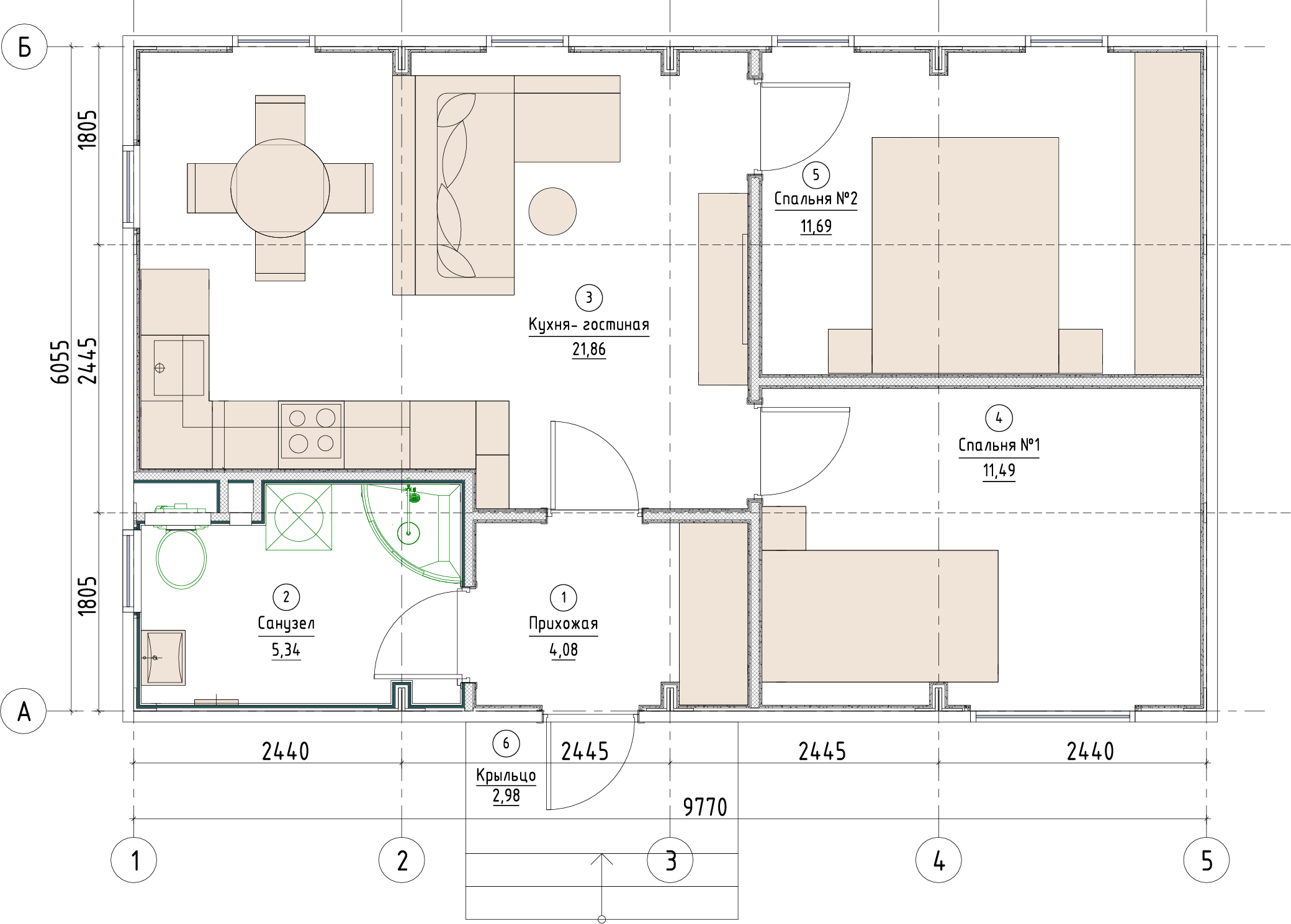
Домокомплект серии EFFECT LIGHT 59 — это современный одноэтажный дом, подходящий для круглогодичного проживания в любой климатической зоне. Он собран из четырех модулей общей площадью 59,15 м². Лаконичная отделка под дерево и конструктивные элементы цвета «антрацит» создают неповторимый элегантный стиль, а свободная планировка внутреннего пространства позволит организовать помещение удобным для вас образом.
Почему стоит сотрудничать с нами
- Высокая скорость возведения дома. Благодаря уникальной технологии и полной заводской готовности всех элементов, монтаж домокомплекта на готовый фундамент, при полном соблюдении строительных требований к плоскостности и нивелировке поверхностей, занимает около 8 дней. Все технологические отверстия уже проделаны на заводе изготовителе с помощью высокоточного оборудования. Профессиональная монтажная бригада без каких-либо затруднений устанавливает такой домокомплект.
- Развитая сеть генеральных партнеров. Оперативная доставка домокомплектов возможна в любую точку РФ: представительства концерна DoorHan находятся в 65 регионах России и странах СНГ. Во многих регионах уже есть развитая сеть генеральных партнёров, которые прошли аккредитацию в МК DoorHan и установили в вашем регионе выставочный образец домокомплекта.
- Комплексное предложение для заказчика. Высокотехнологичные и современные домокомплекты — это уникальное предложение на российском рынке. Дополнительно к нему мы предлагаем комплексные решения по установке гаражей и систем ограждений: автоматические въездные и гаражные ворота, металлические 3D-заборы, рольставни и рольворота, современные системы контроля и ограничения доступа. Все ограждения и автоматика изготавливаются на наших заводах уже более 27 лет.
- Полный цикл производства домокомплектов. Полный цикл производства: все комплектующие здания от металлических рам до стеновых панелей изготовлены на собственных заводах. В комплект дома входят все необходимые материалы для быстрого строительства теплого контура.
Конструкция

Параметры
| Параметр | Показатель |
|---|---|
| Длина, мм | 9 770 |
| Ширина, мм | 6 055 |
| Площадь, м² | 59,15 |
| Количество этажей, шт | 1 |
Технические характеристики
| ПАРАМЕТР | ЗНАЧЕНИЕ | ПРИМЕЧАНИЕ |
|---|---|---|
| Снеговая нагрузка, кг/м² | 490 | 7 снеговой район |
| Ветровая нагрузка, кг/м² | 85 | 7 ветровой район |
| Сейсмическая нагрузка, баллы | 9 | |
| Диапазон рабочих температур, °С | -40…+45 | |
| Теплоизолятор | Пенополиизоцианурат, плотность 38—42 кг/м³ | В стеновых сэндвич-панелях |
| Теплопроводность, Вт/(м·К) | 0,022 | Для сэндвич-панелей c PIR-наполнителем |
| Группа горючести по ГОСТ 30244-94 | Г1 (слабогорючие материалы) | Для сэндвич-панелей c PIR-наполнителем |
| Предел огнестойкости, мин | EI45 | Для сэндвич-панелей c PIR-наполнителем |
Зоны применения



Преимущества
- Возведение в любом регионе РФ и СНГ. Использование энергоэффективных материалов (сэндвич-панели с PIR-изоляцией толщиной 100, 120, 150 мм), антикоррозионная обработка комплектующих, высокие показатели сейсмоустойчивости позволяют возводить и эксплуатировать дома EFFECT в широком диапазоне температур.
- Свободная планировка. Отсутствие межкомнатных несущих стен допускает полную перепланировку внутреннего пространства удобным для владельца образом.
- Безопасность. При строительстве используются только негорючие и слабогорючие материалы: металл и PIR-утеплители. Класс горючести используемых сэндвич-панелей — Г-1 (не распространяют пламя, не горят), предел огнестойкости — до EI45. Кроме того, PIR не содержит вредных компонентов и не имеет запаха.
- Высокая скорость сборки. Высокая точность изготовления комплектующих и подготовка монтажных отверстий на производстве значительно упрощают и ускоряют процесс монтажа. Общий срок возведения теплового контура здания составляет всего восемь календарных дней.
- Энергоэффективность. В качестве утеплителя в сэндвич-панелях используется пенополиизоцианурат (PIR) — модифицированный пенополиуретан с улучшенными характеристиками энергоэффективности, которые гарантируются высокой плотностью пены и низким коэффициентом теплопроводности.
- Стойкость. Утеплитель и облицовочные покрытия сэндвич-панелей устойчивы к различным климатическим воздействиям, не подвержены разрушению, плесневению и гниению. Кроме того, PIR-утеплитель является влагостойким и негигроскопичным материалом.
- Долговечность. По своим прочностным характеристикам модульные строения почти не уступают сооружениям из кирпича или камня. Срок эксплуатации домокомплекта составляет от 50 лет.
Технология производства E.F.F.E.C.T
Покраска стали для строительных панелей
Для изготовления строительных PIR-панелей используется уже окрашенная рулонная сталь собственного производства DoorHan. Окрашивание стали осуществляется на современной полностью автоматической линии по технологии Coil Coating, которая обеспечивает большой срок службы лакокрасочного покрытия. Технологические характеристики применяемого оборудования и стопроцентный контроль всех производственных процессов позволяют получать покрытие, отвечающее высоким требованиям российских стандартов.
Преимущества Coil Coating
- Непрерывность окрашивания
- Высокоскоростное нанесение
- Однородность наносимого слоя
- Малая продолжительность отверждения покрытий
Производство строительных PIR-панелей

Строительные панели PIR (стальные панели с утеплителем из пенополиизоцианурата) выпускаются на специализированном заводе DoorHan на автоматической линии (производство Италия). Наличие на предприятии химической лаборатории позволяет проводить строгий контроль качества поступаемого сырья, производственных процессов и уже готовой продукции. Изготовление панелей осуществляется на непрерывной линии, что минимизирует риски, связанные с человеческим фактором, и позволяет выпускать продукцию стабильно высокого качества.
Производство элементов рам для каркаса зданий

Все элементы металлических рам изготавливаются на высокотехнологичной линии горячего проката стали. Данный метод позволяет изготовить рамные конструкции высокой точности, обладающие отличными качественными показателями и повышенной прочностью на излом.
Сварка элементов рамной конструкции

Все сварочные операции выполняются на современных роботизированных комплексах, благодаря чему достигается высокая точность геометрии стальных рам будущего каркаса дома, а также повышенная прочность соединений элементов.
Специальная обработка рам перед окраской

Дробеметная обработка сварных металлических рамных конструкций проходит на современных установках (производство Италия) с использованием стальной колотой дроби. Данная технология предварительной обработки стали позволяет достичь идеальной очистки поверхности перед окрашиванием. Дробеметная установка хорошо удаляет оксид металла, окалину и всевозможные загрязнения, что важно для надежного нанесения порошковой полиэфирной краски.
Производство минераловатных плит

Изготовление минераловатных плит осуществляется на автоматической линии итальянского производства из волокна с высокими тепло- и звукоизолирующими показателями. Специальное волокно так же изготавливается на собственном заводе концерна DoorHan посредством плавления сырья в рудотермической печи. Производство минераловатных плит полного цикла позволяет достичь высокого качество выпускаемых изделий.
Упаковка комплектующих для отгрузки
Все комплектующие будущего дома упаковываются согласно транспортировочным схемам. Рамные конструкции обтягиваются термоусадочной пленкой для защиты от неблагоприятных воздействий окружающей среды. Упакованные угловые стойки размещаются на специальных палетах или в транспаки модулей. Все элементы домокомплекта помещаются в транспортировочные ящики согласно ведомости комплектации.
Видеообзоры
Дизайн
Дизайн стеновых панелей

Тип панелей

Комплектация
Базовая комплектация
Металлоконструкция
Ограждающая конструкция
Ящик с комплектацией
Дверь
Фасонные элементы
Металлоконструкция козырька
Дополнительная комплектация
Крыльцо, высота 440 мм
Крыльцо, высота 660 мм
Условия эксплуатации
Планировочные решения

Подготовка строительного объекта

- Получить планировочное решение и схему опорных точек блок-контейнера или модульного здания.
- Проанализировать вопросы, связанные со скрытыми коммуникациями, расположенными в месте устройства фундамента на строительной площадке.
- Выбрать оптимальный фундамент для обеспечения установки блок-контейнера или модульного здания.
- Осуществить приемку фундамента, контролировать устройство опорных точек блок-контейнеров в единой горизонтальной плоскости и размерность в соответствии со схемой. Эффективность и качество монтажа модульного здания зависит от устройства фундамента.
Требования к строительному объекту
Упаковка
| УПАКОВКА В КАРТОН | ХАРАКТЕРИСТИКИ УПАКОВКИ |
|---|---|
| Popis | Картонные листы укладываются на напольное финишное покрытие для его защиты; при упаковке транспортных пакетов (транспаков) картонные листы прокладываются между глухими стеновыми сэндвич-панелями для предотвращения повреждений их покрытия |
| УПАКОВКА В ПУЗЫРЧАТУЮ ПЛЕНКУ | ХАРАКТЕРИСТИКИ УПАКОВКИ |
|---|---|
| Popis | Защитное покрытие комплектации блок-контейнера и транспортного пакета |
| УПАКОВКА В КОНТЕЙНЕР | ХАРАКТЕРИСТИКИ УПАКОВКИ |
|---|---|
| Popis | Комплектация блок-контейнеров, размещаемая в стандартном транспортном контейнере |
| УПАКОВКА В КОРОБКУ | ХАРАКТЕРИСТИКИ УПАКОВКИ |
|---|---|
| Popis | Упаковка комплектации представляет собой коробку стандартного размера |
| Složení | Коробка из трехслойного картона, стретч-пленка, скотч с логотипом |
| Šířka, mm | 700 |
| Výška, mm | 900 |
| Délka, mm | 1400 |
| УПАКОВКА В СТРЕТЧ — ПЛЕНКУ | ХАРАКТЕРИСТИКИ УПАКОВКИ |
|---|---|
| Popis | Покрытие лицевой поверхности стальных конструкций блок-контейнера защитной клеевой лентой для предотвращения повреждения лакокрасочного покрытия |
| УПАКОВКА НА ПАЛЕТУ | ХАРАКТЕРИСТИКИ УПАКОВКИ |
|---|---|
| Popis | Деревянный каркас для транспортировки дополнительных стальных конструкций модульных зданий (дополнительной крыши, крылец, козырьков, лестниц и прочих) |
Паспорта и сертификаты


Гарантия
Гарантийный срок исчисляется с даты подписания универсальных передаточных документов и составляет 5 лет при условии соблюдения потребителем всех правил эксплуатации, транспортировки, хранения и монтажа.
Рекламации могут предъявляться в течение гарантийного срока при условии соблюдения потребителем требований инструкции по эксплуатации здания с составлением рекламационного акта, содержащего:
• наименование организации, в которой эксплуатируется здание, ее почтовый адрес,
• дату получения здания от завода-изготовителя,
• характер повреждения и условия, при которых оно произошло
• заключение комиссии с участием представителя заинтересованной стороны.
На несогласованное с поставщиком внесение изменений в конструкцию домокомплекта EFFECT гарантия поставщика не распространяется.


