Скоростные рулонные ворота для пищевой промышленности
Гарантия
1 год на весь товар
Доставка из Москвы
от 2 до 4 дней
Доставка по ДНР
Бесплатно
Установка специалистами
Оплачивается отдельно
Предоплата
Без предоплаты
от
242 752 ₽
Цена указана с НДС 20%

Консультация и заказ
Описание
Скоростные рулонные ворота серии SPEEDROLL SDF предназначены для изоляции и сохранения микроклимата внутри помещений на объектах пищевой промышленности.
Преимущества:
- Высокая скорость открывания — до 2,0 м/с;
- Стойки и короб изготовлены из нержавеющей стали;
- Надежная автоматика собственного производства;
- Возможность установки различного дополнительного оборудования: фотоэлементов, ключ-кнопки, системы подогрева привода и стоек и др.
Концерн DoorHan производит погрузку воpот на грузовой транспорт с помощью гидравлического подъемного крана или автопогрузчика с вилочным захватом не менее 2 м. Покупатель или установщик должен предоставить такое же оборудование для перемещения упакованных ворот. Вилка должна заходить под деревянный поддон, предоставляемый изготовителем, и выступать с другой стороны. При использовании крана или другого средства подъема рекомендуется использовать стропы соответствующей грузоподъемности.
Конструкция
Внешний вид
Видеообзор
Дизайн

Цвета каркаса/полотна скоростных рулонных ворот
![]() | ![]() | ![]() | ![]() |
![]() | ![]() | ![]() |
Таблица размеров
ПАРАМЕТР | ПОКАЗАТЕЛЬ |
---|---|
Ширина проема, мм | от 1 200 до 3 800 |
Высота проема, мм | от 1 700 до 3 800 |
Притолока, мм | от 450 |
Пристенки, мм | от 225 |
Подготовка строительного объекта
Способы монтажа

Стандартные конструктивные решения

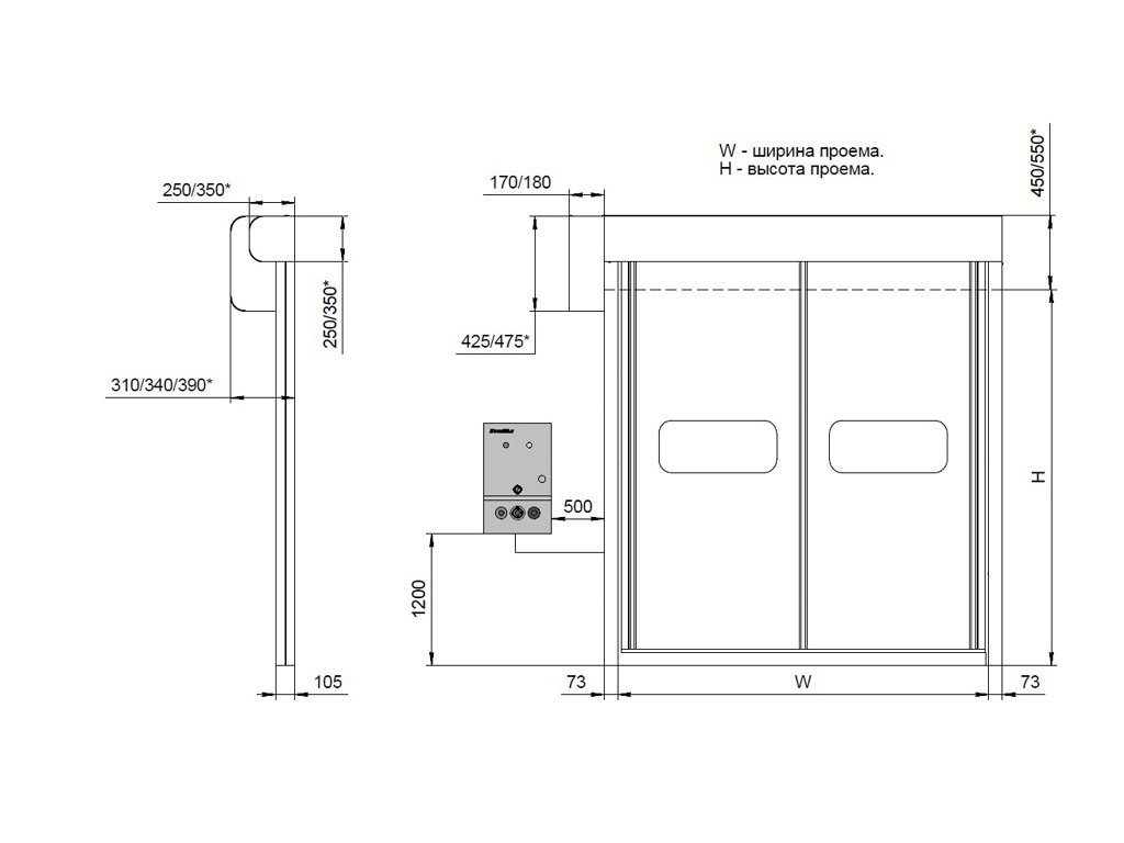
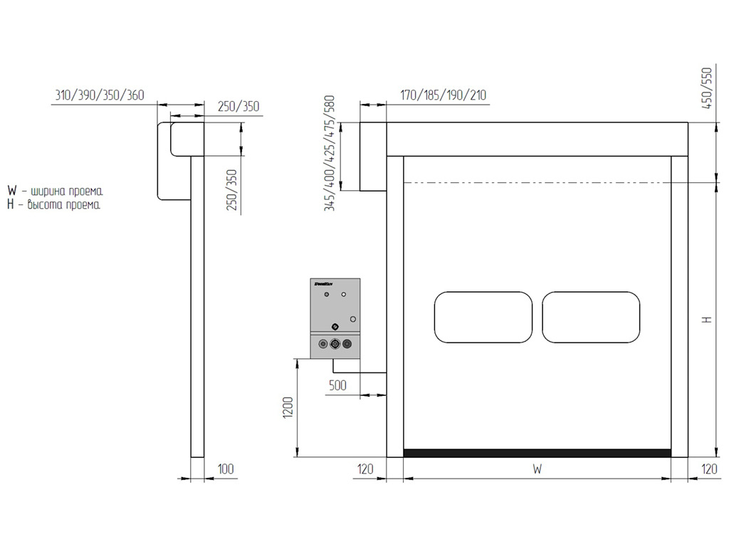
Параметры проема
УСЛ. ОБОЗНАЧЕНИЕ, НАИМЕНОВАНИЕ ПАРАМЕТРА | РАСЧЕТНАЯ ФОРМУЛА |
---|---|
B, мм Ширина проема | от 1 600 до 3 800 |
H, мм Высота проема | от 1 700 до 3 800 |

Параметры проема
УСЛ. ОБОЗНАЧЕНИЕ, НАИМЕНОВАНИЕ ПАРАМЕТРА | РАСЧЕТНАЯ ФОРМУЛА |
---|---|
B, мм Ширина проема | от 1 600 до 3 800 |
H, мм Высота проема | от 1 700 до 3 800 |
Комплектация
Базовая комплектация







Дополнительная комплектация



Технические характеристики
ПАРАМЕТР | ЗНАЧЕНИЕ | ПРИМЕЧАНИЕ |
---|---|---|
Ветровая нагрузка, км/ч | CLASS2 (до 90) | для ворот до 3 800 × 3 800 мм |
Ветровая нагрузка, км/ч | CLASS3 (до 120) | для ворот до 3 000 × 3 000 мм |
Скорость открывания, м/с | 2,0 | ворота до 3 000 × 3 000 мм |
Скорость открывания, м/с | 1,5 | ворота до 3 800 × 3 800 мм |
Скорость закрывания, м/с | 0,5 | |
Диапазон рабочих температур, °С | от 0 до +50 | |
Мощность, Вт | 1 500 | |
Класс защиты IP | IP54 | концевые положения отслеживаются энкодером |
Напряжение питания, В | 220 В / 50 Гц | однофазное |
Напряжение питания, В | 380 В / 50 Гц | трехфазное |
Безотказность, количество циклов открывания-закрывания, не менее | 1 500 000 | зависит от условий эксплуатации |
Условия эксплуатации
— здания, расположенные на морских побережьях или в горах;
— многоуровневые отапливаемые подземные паркинги со множеством въездов и выездов;
— производства с мощной приточно-вытяжной вентиляцией;
— в зданиях сложной конфигурации с множеством воротных проемов, где возможно появление сильных сквозняков. При наличии одного или нескольких вышеуказанных факторов рекомендуется использовать ворота серии SpeedFold или спиральные ворота серии HSSD.
Упаковка
УПАКОВКА В ДЕРЕВО | ХАРАКТЕРИСТИКИ УПАКОВКИ |
---|---|
Состав | упаковка представляет собой деревянный ящик из бруса, между узлами проложен каpтон, все закреплено хомутами |
Длина, мм | зависит от длины составных частей ворот |
Ширина, мм | от 640 до 705 |
Высота, мм | от 480 до 730 |
Гарантия
Покупателю предоставляется гарантия работоспособности скоростных рулонных ворот производства концерна DoorHan на срок 1 год для розничных и на срок 2 года для дилерских заказов с момента приобретения.